Beschrijving
Stijlvol wonen in het Staatsliedenkwartier – "Twee-onder-eenkapwoning vol comfort en karakter!"
Welkom aan de 1e Wormenseweg 201, gelegen in het geliefde Staatsliedenkwartier van Apeldoorn. Zoek je met je gezin een royale, fris afgewerkte woning met riante tuin? Dan is dit wellicht jouw nieuwe thuis! Hier geniet je van eigentijds wooncomfort, terwijl het geheel sfeer en karakter ademt. Laat je verrassen door alles wat deze prachtige twee-onder-een-kap te bieden heeft.
Charmant en duurzaam
Wat als eerste opvalt: deze woning uit 2010 verkeert werkelijk in topstaat. Met een energielabel A combineer je duurzaamheid, lage energielasten eenvoudig met comfort, en dat geeft een gerust gevoel – zowel voor je portemonnee als voor het milieu. Het huis is gebouwd met oog voor detail, modern geïsoleerd en tot in de puntjes afgewerkt. Kom binnen en laat je meenemen door de warme en uitnodigende sfeer.
Koken en tafelen in stijl
Aan de achterzijde bevindt zich de royale, open woonkeuken met zeer veel lichtinval via de lichtkoepel in het dak: een plek die uitnodigt om samen te komen – van het ontbijt tot de late borrelavonden.
De luxe keuken is voorzien van hoogwaardige inbouwapparatuur en biedt voldoende werk- en bergruimte. Dankzij de openslaande deuren vloeien binnen en buiten moeiteloos in elkaar over, zodat je op warme dagen met gemak de tuin bij het huis betrekt.
Met de ruime bijkeuken is er voldoende ruimte voor het opbergen van voetbaltassen, wasmanden en overige spullen en staat de wasmachine binnen handbereik.
Sfeervolle woonkamer met kachel
De ruime lichte woonkamer is met de moderne ensuite deuren af te sluiten, zonder het ruime open karakter van de ruimte te verliezen en daarmee een fijne rustgevende plek in het huis! Hier kom je na een drukke dag helemaal tot rust, bijvoorbeeld bij de sfeervolle kachel op een koude winteravond. Stijlvolle details, strak stucwerk en grote raampartijen maken het totale plaatje compleet: zowel knus als modern, zonder in te boeten aan sfeer.
Buitengewoon genieten in de tuinkamer
Met een achtertuin van maar liefst 160 m2 heb je een absolute buitenruimte uit de categorie ‘wauw’. Of je nu kinderen hebt die op het gras willen ravotten, of droomt van een eigen moestuin – hier kan het allemaal. Dé eyecatcher? De zeer luxe, compleet geïsoleerde tuinkamer (ontwikkeld en gerealiseerd door Buitenpracht). Dit is dé plek voor lange zomeravonden met vrienden, maar evengoed perfect als thuiskantoor of hobbyruimte. Regen of zon, je zit er altijd fijn.
Ruimte voor het hele gezin
Deze eengezinswoning biedt met z’n 136 m2 woonoppervlakte zeeën van plek voor het gezin. De goed ingedeelde slaapkamers zorgen voor privacy en comfort, terwijl de heerlijke badkamer eveneens volledig is ingericht met moderne voorzieningen. Alles is tot in detail verzorgd; meteen verhuizen en wonen maar!
Ligging om van te dromen
Wonen in het Staatsliedenkwartier is plezierig en praktisch tegelijk. Je vindt in de directe omgeving volop groen en speeltuinen voor de kinderen, en ook de dagelijkse voorzieningen zoals winkels, scholen en openbaar vervoer bevinden zich op loop- of fietsafstand. Bovendien ben je zó in het centrum van Apeldoorn én rijd je in no-time de stad uit richting de Veluwe.
Even samenvatten...
Hier woon je in stijl, duurzaam, en met volop ruimte en comfort voor het hele gezin. Een huis waarin sfeer en luxe hand in hand gaan – van sfeervolle living met kachel tot royale tuin en unieke buitenkamer. Zie jij jezelf (en je gezin) hier al wonen? Pak dan die kans, want dit soort woningen komen niet vaak voorbij.
Kom kijken, voel de sfeer en ontdek zelf waarom de 1e Wormenseweg 201 het perfecte startpunt is voor een nieuwe woonfase!
Vraagprijs 639.500 euro k.k.
Bel Olivier voor het maken van een bezichtigingsafspraak via 06-24750248
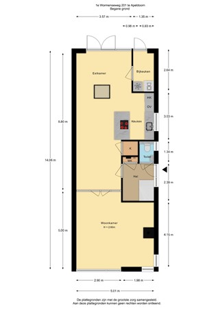
Indeling
Entree/hal, meterkast, toilet, trapopgang, woonkeuken met toegang tot de tuin middels openslaande deuren, met ensuite deuren af te sluiten woonkamer met kachel, open keuken v.v. 5 pits inductiekookstel, koelkast, vaatwasmachine, stoomoven en een magnetron, bijkeuken.
Eerste verdieping
Overloop, badkamer v.v. inloopdouche, 2e toilet, ligbad en wastafel, ouderslaapkamer met vaste kast en dakkapel, 2e slaapkamer met vaste kast en dakkapel en 3e slaapkamer.
Tweede verdieping
Overloop met vaste trap naar de vlieringzolder, droogrek in de nok van het dak, 4e slaapkamer met bedstee en vaste kast, werk-/studeerplek met veel lichtinval via dakraam.
Tuin
Luxe geïsoleerde buitenkamer (traditioneel gebouwd) met houtkachel ontworpen door "Buitenpracht". Tevens een stenen garage met openslaande deuren.