Beschrijving
Deze ruim uitgebouwde hoekwoning, is gelegen aan het water in een fijn en zeer rustig deel van woonwijk het "Woudhuis".
Wat direct opvalt is de ruime woonkamer (29 m2) met directe toegang tot de zonnige achtertuin met tuinkamer.
Met de lichte royale woonkamer, moderne open keuken, zeer ruime tuin , 3 slaapkamers en een zonnig dakterras is dit een prachtig woonhuis waar je zo in kunt!
De woning is zeer goed onderhouden en heeft vloerverwarming op de begane grond en veel lichtinval in de woonkamer en keuken.
Daarnaast biedt het perceel veel privacy, is gelegen aan het water in een zeer groene omgeving.
Een bezichtiging zal uw verwachtingen overtreffen!
Kenmerken:
– Hoekwoning (BJ 1993)
– Moderne open keuken
- Moderne badkamer (2022)
– Sfeervolle erker
– Uitbouw van 2,5 meter
– Volledig geïsoleerd
- Airco (2024)
– Zeer zonnig gelegen
– Vloerverwarming
– Bouwkundig geschikt voor extra verdieping of 4e slaapkamer
– Tuin gelegen op het zuidwesten met een "tuinkamer", nieuwe schutting en bestrating uit 2021.
– Nabij Winkelcentrum De Linie & het NS Station Osseveld – Woudhuis
- Cv ketel leasecontract (ter overname)
Vraagprijs 435.000 euro k.k.
Indeling
Entree/hal, inpandige berging, meterkast, toilet, trapopgang, woonkamer met toegang tot de tuin, open keuken v.v. 4 pits gaskookstel, koelkast, vaatwasmachine en combi oven/magnetron.
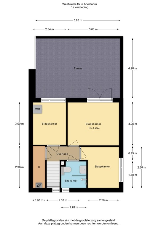
Eerste verdieping
Overloop met CV- en wasmachineruimte, badkamer v.v. douche 2e toilet en wastafel, slaapkamer met directe toegang tot het dakterras, 2e en 3e slaapkamer.
Tuin
Tuin met tuinkamer, berging, veel ruimte voor spelende kinderen en gelegen aan het water.
Bijzonderheden
De mogelijkheid om een 4e slaapkamer te bouwen op de uitbouw. tevens bestaat de mogelijkheid om een extra verdieping te plaatsen.
Plattegronden
Westkreek 45-Begane grond - 2D.jpg
Westkreek 45-Begane grond - 3D.jpg
Westkreek 45-1e verdieping - 2D.jpg
Westkreek 45-1e verdieping - 3D.jpg
Westkreek 45-Berging - 2D.jpg
Westkreek 45-Berging - 3D.jpg